345 Eugenia Road
SOLD
On the market for only 3 days, with multiple showings and offers, before a sale was agreed.
The house represented a rare opportunity to purchase in the desirable northern section of Central Beach, close to the Marina and Yacht Club and moments from the Museum, Theatre, Beaches, Restaurants, and Shopping.
Built in 1952 and owned by the same family since 1989, with improvements in 1993.
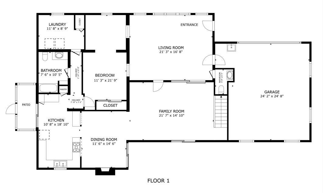
Currently a 3BR/2BA home with attached two-car garage, set back from a charming tree-lined street.
It was listed at a price that reflected the exceptional location and opportunity to be on one of the area’s most sought-after roads.
Lot size 62.38ft by 118.87ft.
For further information go to
MLS# 295203
This was a perfect example of how I work to help Clients achieve their objectives.
If you want similar excellent Real Estate support, just call me on:-
(772) 559 4037
Stuart Kennedy




